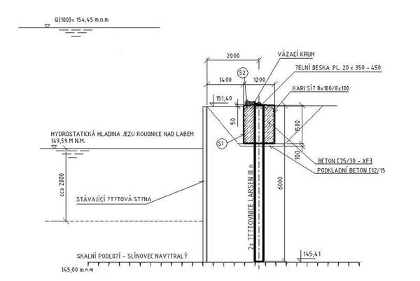
Základní informace
Zahájení realizace stavby
                                    19.09.2005
Ukončení realizace stavby
                                    31.12.2005
Zhotovitel
                                    Zakládání staveb a.s.
                                                Dobronická 1371, 148 26 Praha 4
                                            Správce a provozovatel
                                    Povodí Labe, státní podnik
                                                Víta Nejedlého 951, 500 03 Hradec Králové
                                            Projektant
                                    TRANSCONSULT s. r. o.
                                                Nerudova 37, 500 02 Hradec Králové
                                             EU - Operační program infrastruktury
                                            EU - Operační program infrastruktury
                                         Státní fond dopravní infrastruktury
                                            Státní fond dopravní infrastruktury
                                         
                                 
                                     
                                     
                                     
                                     
                                     
                                     
                                     
                                     
                                     
                                     
                                     
                                     
                                     
                                     
                                     
                                    